Calpe, önálló családi ház (IAR5116444)
- €1,290,000
- €1,290,000
Általános adatok
- Önálló családi ház
- 4
- 4
- 303 Négyzetméter
- IAR5116444
Leírás
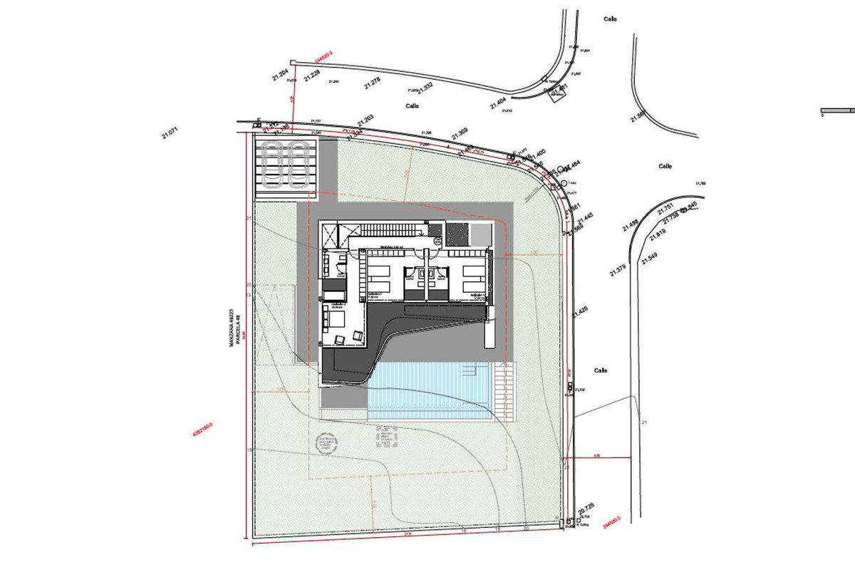
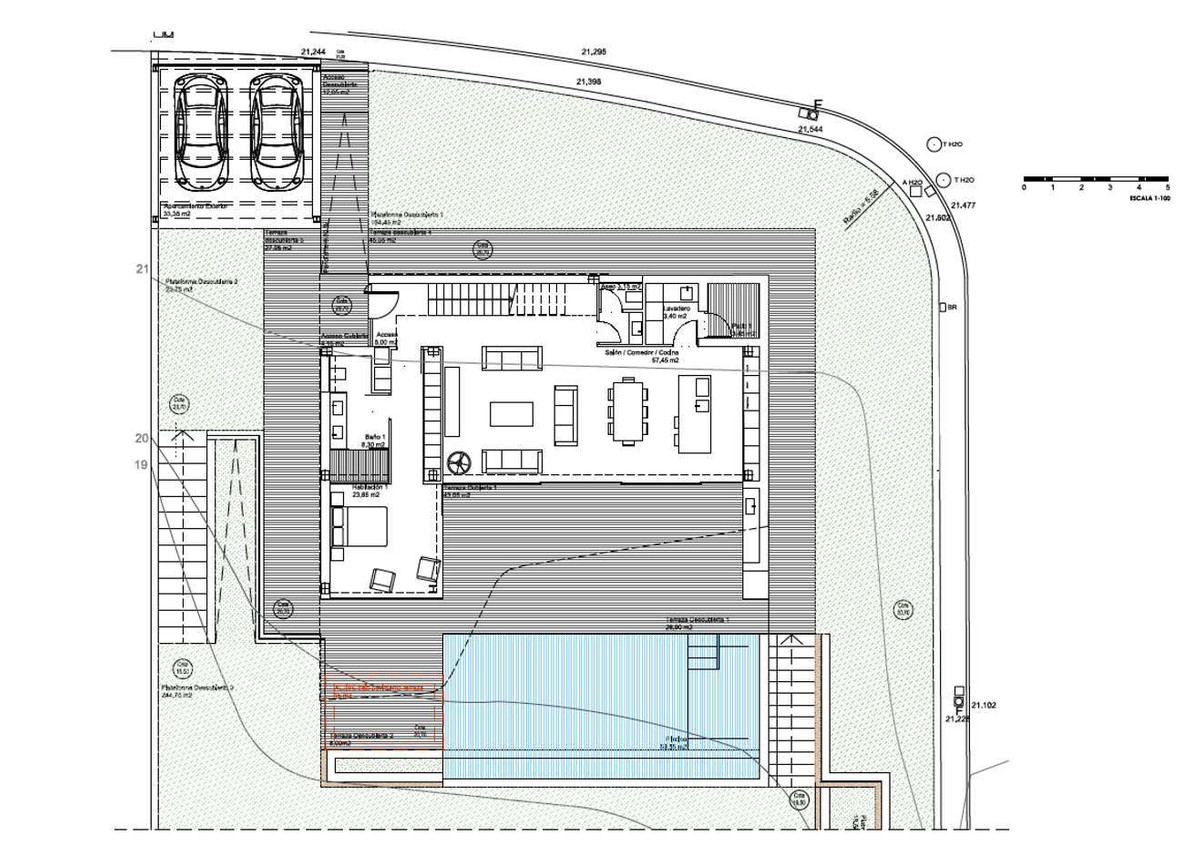
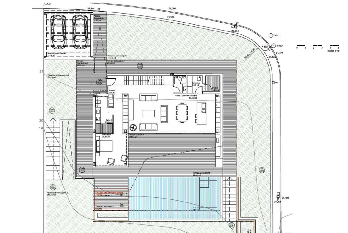
This modern villa is located in a privileged area of Calpe, just 15 minutes walk from the beautiful white sandy beach Poniente Arenal Bol and all amenities. The property sits on a corner plot of 920m2 and consists of 303m2 distributed over 2 floors. This fabulous property stands out for its excellent qualities and finishes and a functional layout.
The ground floor contains a large open-plan space (57,45m2) comprising the living-dining room and the fully-equipped modern kitchen. On this floor there is also a spacious bedroom (24m2) with en-suite bathroom, a guest toilet and adjacent to the kitchen a laundry room. The outdoor area enjoys a magnificent infinity pool of 59,55m2, veranda with built-in barbecue and open terrace to enjoy the sun.
The upper floor comprises 3 bedrooms with en-suite bathrooms and access to a sunny terrace. The villa is equipped with underfloor heating, ducted air conditioning system and large format porcelain floor tiles. There is a covered parking space of 33,35m2.
Elhelyezkedés
Megnyitás a Google Térképen-
Lokáció: Cometa-Carrió (Calpe), Calpe, Costa Blanca, Alicante
-
Város: Calpe
Érdeklődés az ingatlannal kapcsolatban
Hasonló ingatlanok
- Ingatlan Alicante

































