Javea, önálló családi ház (IAR5131186)
- €850,000
Általános adatok
- Önálló családi ház
- 3
- 2
- 152 Négyzetméter
- IAR5131186
Leírás
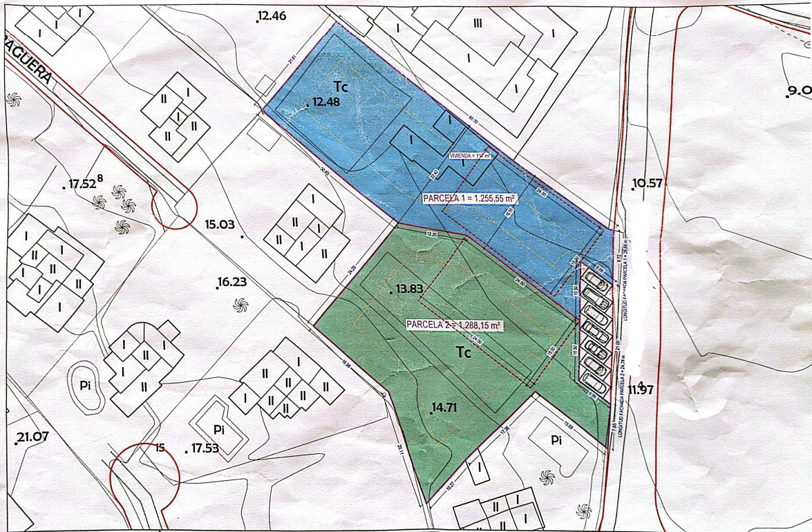
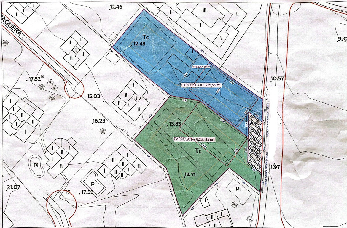
Plot of 2,600 m2 with a house and the possibility of dividing it into two buildable plotsThis plot is located only a short distance from the sandy beach of Jávea and offers an excellent investment opportunity. The plot can be perfectly divided into two independent buildable plots of approximately 1,300 m2 each, suitable for building two luxury villas.Currently, the plot contains a single-story villa with a built area of 152 m². The property features a living room with an open kitchen, a second living-dining room with a closed kitchen, three bedrooms, two bathrooms, and a patio with a storage room.This plot is within walking distance of the sandy beach of Jávea and enjoys an excellent location close to all amenities. Supermarkets, restaurants, medical offices, sports facilities, and other daily necessities are all within a short distance. This location combines privacy with the convenience of a central setting.
Elhelyezkedés
Megnyitás a Google Térképen-
Lokáció: Javea, Costa Blanca, Alicante
-
Város: Javea
Érdeklődés az ingatlannal kapcsolatban
Hasonló ingatlanok
- Ingatlan Alicante


































